Wrong side of the tracks

Posted on Mon, 19 Mar 2012 by midcenturyjo

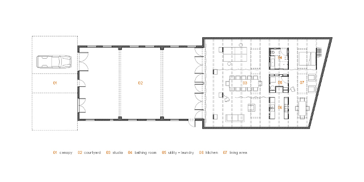
Across the freight train line in the bad part of town an old garage has a new lease on life. Abandoned and derelict it now houses a studio and living space as well as an open courtyard. A rough and ready building offering a well considered use as home or workspace. By Atlanta architects Brian Bell and David Yoachim of bldgs.

Tonia says:

I am always amazed when people take a space that has been long abandoned and create a space that works again. I'd love to live there with a tad bit more furniture.

Cata says:

LOVE, LOVE, LOVE!!!

teresa says:

i am so intrigued by this. i've always loved the idea of transforming an existing structure and creatively taking advantage of what the years of neglect have revealed. so cool.

Love the intelligent and beautiful reuse of an existing building! Incredibly done!
– agata.

wow, big wow!
I love how the design allows for the existing abandoned structure to shine as a feature.
Struggling for words at the moment, so speechless
x kat

Melanie says:

Amazing! Like Kat, I am practically speechless.

tanya says:

this is freaken awesome!!!

rooth says:

This is actually an amazing space with so much light – I really like it

Oregonbird says:

That goes in my architecture file. Brilliant make-over.

Todd says:

Wow, another awesome display of rehabbing a derelict property…

I followed the jump, this firms work is incredible.

Thanks for the post!

Cheers
Todd

Leave a Comment

Your email address will not be published.
Required fields are indicated by *