
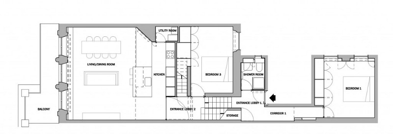
The flexible design of the space within this London home allows it to be used by in a number of ways by family members. A pied-à-terre at one end with loft bedroom, turn another way, open the doors and now a three bedroom flat. The folding screens providing privacy to the loft are polycarbonate. A modern redesign with elegant Victorian proportions by VW + BS Architecture and Design.
















peggy says:
OMG I am sooo in love with those pendant lights in the dining room. Do you know if they were also designed by VW & BS? Gorgeous!
KiM says:
I don't see these lights on their website. They are pretty fantastic.