
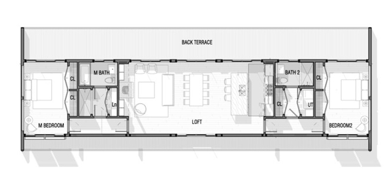
I have shared a few projects in the past by New York-based Incorporated Architecture & Design such as this apartment and this apartment but I also shared this really cool cabin-like simple and modern home. They have since designed another similar home but this time larger. The simplicity of the structure is absolute perfection (IMHO). Concrete floors, wood framed doors and windows and those gorgeous wood kitchen cabinets lend an organic, raw feel to the space and brings the outdoors in…with the help of some pretty awesome plants too. I would live here in a heartbeat.

















jmeena says:
Does anyone know what type of fern-like tree plant is on photo #6. I'm in love.
gayleen says:
The tree is a Norfolk Pine. They are pretty hard to keep looking good, as the lower branches tend to die off. This one has all of those lower branches pruned off.
DebraKim1956 says:
My god this is my dream house!
Ruth says:
dream come true