
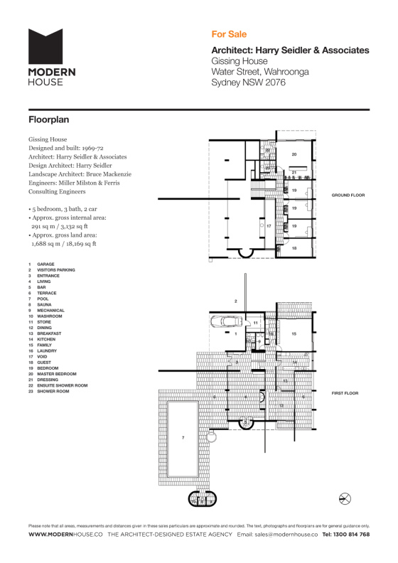
Gissling House, Wahroonga, Sydney. Described as a modest domestic work by Harry Seidler. Untouched by time and fads, developer or the market. As perfect as the day it was completed in 1972. Definitely not modest. To me a suburban jewel of modernism. For sale. I wish I could be so lucky to call this home. Link here while it lasts.












“Artistic Designs for living is about creativity, organization and management.”
To me it is all about how San Francisco interior designer Tineke Triggs and her design team use confident colour, sophisticated layering and careful consideration of the space. The first few photos are of the ADFL studio. The colour is “kapow”, the textures lush. Love the brick wall with the shelf for book display. May just have to use that in my own home. Don’t miss the Mill Valley family home after the jump. Earthy, casual, creative. A wonderful family space.




















I love creative spaces…especially when they are workspaces because after spending the last 10 years working in an ugly, boring, totally uninspiring cubicle, it has become completely energy draining. Here’s a workspace I could totally work in.
We’re Aus3 Taller de disseny. A young group of designers (interiors & product) that have just established in Barcelona, and created Espai Born – an office, workshop, exhibition, and events space, that we’ve thought, designed, and created. The program consists on a the shop window on the floor at street level, and below the stairs, a working space, meeting room, a workshop and library areas, a long bar to have informal meetings, a reception area and the bathroom. Actually, it is our own space, and we’re working tohether a different multidisciplinary companies and freelances. We have designed all the furniture using recycled wood and metal. The lighting design is simple and uses the bulbs directly, without using lamp shades; and designing ourselves all the pieces, depending on how we’ll use every different area.












I’d like to introduce you to a very talented interior and product design firm based in Sofia, Bulgaria called Fimera. They excel at creating modern spaces that are classy and perfect for entertaining – and living. And anyone who uses a Maarten Baas for Moooi Smoke chair in their spaces is A-OK with me. 🙂

















Rough luxe, rustic yet modern, traditional married with minimalism. Indoor melds with outdoor, concrete and stainless steel, glass and pebbles and everything washed with beautiful natural light. The gallery and dwelling of Valerie Traan in Antwerp, Belgium by LENS°ASS Architect. Subtle beauty, the preservation of the old and the juxtaposition of the modern in a sympathetic way and always the presence of repeating patterns of brick or herringbone or block. After the jump a few more images from the firm’s design of a GP surgery in an old brick barn like structure.








