White box

Posted on Thu, 26 Jan 2012 by midcenturyjo

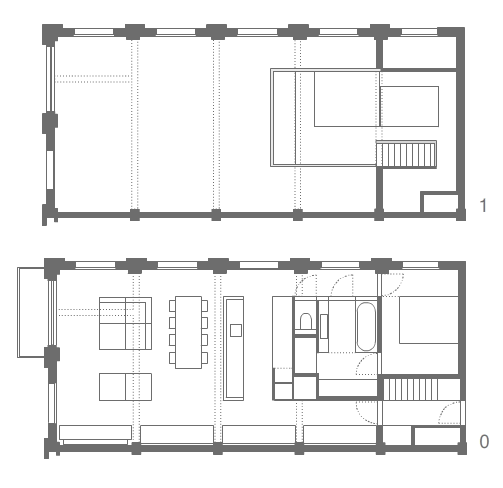
New white box within a white historic shell. 110m2 in a former industrial complex. The roughness of the original concrete and brick building is smoothed by a coat of white paint but still plays against the volume of the new plaster box housing kitchen, bath, bedroom and mezzanine study. Drama is created by the use of black in large industrial windows, kitchen surfaces and furniture. Minimalist apartment by Bruno Vanbesien.

“We believe in the craftsmanship and the use of natural materials. We especially use natural light and the power of the detail. It’s all in the details. The purer a space becomes by leaving all ballast or decoration, the more weight the details get.”

Wow! What a great house!

And I really like this qoute
"The purer a space becomes by leaving all ballast or decoration, the more weight the details get."

Janne says:

OMG! I want to live there. Badly. Absolutely fantastic <3

i love all of the clean lines and open space. but i'll be honest, those stairs would scare me to death.

Really don't care for that staircase… They don't accommodate children or the elderly, and are potentially dangerous for all. Anyone at any age can at times benefit from the support of a banister, or slip and wish there was more protection… Designers should keep some universal design principals in mind, and not sacrifice safety for looks.

sue says:

The staircase is interesting to me. They would possibly work for a loft addition I am dreaming about in my condo. But how are they supported? Does anyone know how they stay in place and support people's weight?

Annie says:

I don't know..I see a lot of places in the photos where they neglected the details. cool stairs and new drywall do not for an award-winning-design make.

denise says:

The problem with homes like this is that once they are lived in, they lose all charm. The detritus of life detracts from the pristine sensibility. Bugger pristine, go boho!

julie says:

I agree – too monastic for me – but those dollops of colour – that yellow wardrobe under the stairs would make any monk do a joyful jig, it certainly made me smile. Bedroom could definitely do with a dollop to add some zing.

Leave a Comment

Your email address will not be published.
Required fields are indicated by *