
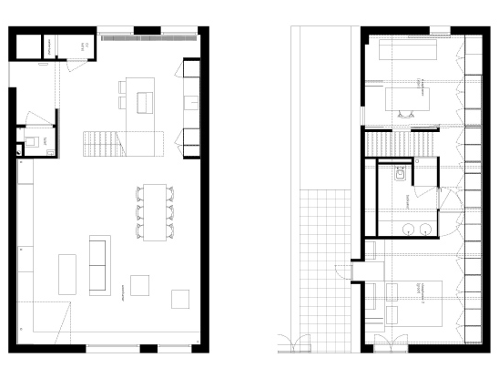
Minimalist 2 storey apartment space within a heritage building in Amsterdam. Clean lines, sharp angles, limited colour palette and smooth surfaces. Warmed by wood elements. A steel staircase angles between the levels separating the dining and living spaces in the open plan first floor. But the hero of the space is fully equipped (albeit minimalist lined) kitchen centre stage. Design by Laura Alvarez Architecture.









Martha says:
Luscious poured resin floor. I want.
Danielle Hardy says:
Incredible! I am literally speechless! Those timbers are just stunning!
Thanks for sharing xo
The_Milanese says:
Beautiful interior and very good inclusion of scarp wood …
+3Design says:
Nice mix of natural textures of wood and white surfaces!
thecitygourmand says:
This apartment is so simple, yet functional and nice to admire 🙂