
Seattle-based interior designer Brian Paquette continues to make me swoon over his work – including this magazine-worthy living and dining room he designed in West Seattle. Such beautiful tones of deep green, ochre, black and grey. Moody and dramatic without being too dark.






(See more of Brian’s projects here)
If you would like to participate in the Monday’s pets on furniture series please send photos, your name, location and a brief description to kim[at]desiretoinspire[dot]net, or hashtag your photos on Instagram with #DTIpetsonfurniture. Thanks! (Note: There were so many great entries on IG since my last pet post I have to save some for next Monday)
Drava the Vizsla….enjoying a dog’s life.
– Jessica


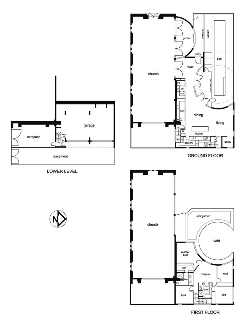
Kim and I love a church conversion. We have shared so many over the years. This “conversion” in Melbourne’s inner-city suburb of Collingwood is just a little bit different. It’s a church juxtaposition, a “house/church symbiosis”, a church and courtyard house Siamese twin configuration, a conversion without converting. The real estate listing calls it “Gothic Revival meets Neo-modernist design”. Whatever you call it it’s bloody brilliant. It’s by Kister Architects and is the architects own home. Watch the video for some insight into the design and also for some great overhead shots that really make the geometry come alive. The price, like the conversion, is OTT (of course) but what else would you expect? Link here while it lasts.



















I am dying over yet another renovated Victorian location home in London via Shoot Factory. While this one appears to be void of any original features, I can forgive the owners for that thanks to the Togo sofas, the marble kitchen island, the Saarinen tulip dining table, the outdoor space with plant wall, and just about everything else.
















Week after week my mantra is the same. If you have to drag yourself into work on the weekend it helps if it’s somewhere stylish. OK OK so this week’s offering is an interior design firm’s own studio but it’s so we can all aspire π Terri Ricci offices by, of course, Terri Ricci Interiors.







