
Obvious mid century roots have been enhanced by new profiles and a more contemporary line in this house by Sydney-based Nobbs Radford Architects. A sense of light and space is enhanced by soaring ceilings, light wells and voids. A galley kitchen harks back to the 60s but is a modern, fresh take with on point finishes. I’m smitten.










Oh yes dreams are made of homes like this. San Francisco architects YamaMar have breathed new life into this mid century home in the Berkeley Hills, enhancing the indoor/outdoor living and upgrading finishes. Then Alison Damonte worked her magic, staging the home with a subtle mix of mid century and modern pieces accentuated by bright colour pops.









Photography by Bruce Damonte

I want to sit on that sofa, rifle through the cupboards, flick the light switches on and off, pour myself a drink and pat the dog. I want to squish my toes into all the rugs, work in that office, run my fingers across the bathroom stone, take shelter from the midday sun in the cabana and swim in the pool. What I really want is this Hollywood Hills house by Veneer Designs.

















Photography by Amy Bartlam

Australia’s Gold Coast is a tourist glitter strip with showy apartment blocks that grow ever higher and ostentatious McMansions devouring two, three or even more original holiday homes. How refreshing to see a mid century gem returned to its laid back 50’s hipster glory with a mix of classic, contemporary and custom designed pieces by Brisbane-based Anju Designs. (Original architectural design by Bill Conrad, renovation by Paul Uhlmann Architects.)


















Photography by Toby Scott.

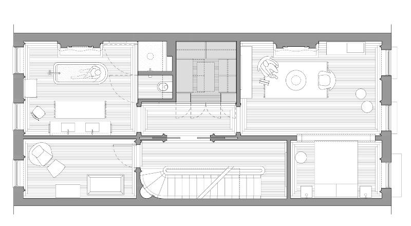
The restoration of this New York Brownstone saw floors replaced, windows reinstalled, doors rebuilt and all the boring but very important services updated. It had been a wreck but in the hands of Brent Allen Buck of Brooklyn-based Buck Projects the late 19th century building became a home again, its Italianate features restored to their former glory while a new focus was placed on modern open plan living. Think mod cons with a mid century collection of furniture and all the while the beautiful old bones grounding it all. “Approached with sensitivity, today can rise to be the equal of yesterday.”


















