
Harbour Edge House c.1910 reworked and extended by Fearon Hay Architects. An ethereal beauty. White floors, white walls, floating white drapes stirred by the breeze from the water beyond. Simplified and sensual. It’s love at first sight for me.















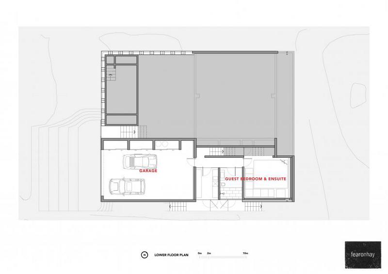
The awards have been decided, gongs to be given and it’s official. The World Architectural Festival has chosen the Dune House by New Zealand’s Fearon Hay Architects as the winner in the Villa category. Nestled in the dunes of a popular beach the home provides shelter and privacy, a raw richness and coastal calm. Interiors are in collaboration with Penny Hay.



















You’ll never know what you will find at the top of the stairs. Perhaps a fabulous minimalist master suite with an iconic view. Birchgrove House by Nobbs Radford.













New against old. Blocks of concrete and narrow recessed glass. Outward and in and the relationship between the two. Open plan extension to a Victorian era house where the new contrasts against the old. Internal walls of concrete are warmed by wood. It’s a restrained palette of concrete, black aluminium, stainless steel and oak. Glebe House by Nobbs Radford Architects.


















It’s been in the family for years. It was their grandfather’s house. Now with the help of architect Manuel Aires Mateus, João and Andreia Rodrigues have created a simple and stylish get away in Montemor-o-Novo, Alentejo, Portugal. Casa no Tempo, minimalism meets rural idyll. Rolling fields, wildflowers, cork grove, horses, pool. I can see the perfect weekend far from the madding crowd. If only I could runaway.














