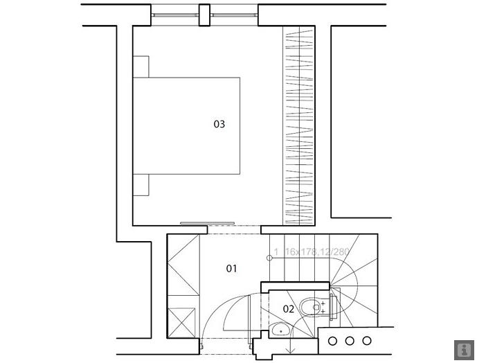
I’ve always wanted to buy a really old home that has cool architectural features and renovate it, leaving some of the “old” intact. That is just what marianne amodio architecture studio in Vancouver did here. A complete transformation of a seldom used ground floor from basement storage to master bedroom and living quarters, this renovation was realized with the principle of exposing the layers of history evident in the 1927 home. The contrast between old and new is proudly pronounced: Original red brick fireplaces are revealed, their chalk inscriptions from previous owners left behind; old fir beams find new life as stair treads, and vintage fir planks salvaged from the demolition become a crafted herringbone feature wall. The concrete floor is uncovered, contrasted by shiny new tiles. A spectacular cool blue wetroom and powder room adjoin a new master bedroom; the headboard is the vintage brick fireplace.








As much as I love bright, white spaces I am also a big fan of dark, moody and industrial spaces as well. I spotted these 2 homes on MilK magazine’s site and had to share. LOVE. So unpretentious and full of character.










A tiny two storey apartment by Prague architects SMLXL Studio makes clever use of a difficult layout (three chimney breast pierce the space). White painted brick, open plan living, pallets as furniture and a definite industrial vibe all add up to a stylish home for its young owner. The original story is from Czech magazine Bydleni iDNES with thanks to reader Bara for the link and translation!



















Three interiors from Honolulu/San Francisco based interior design firm Philpotts. The first, a loft in SF with a distinct industrial vibe, dare one say, perhaps leaning a little towards steampunk. The second is a teenager’s room where every inch of the small space has been considered and put to use. Love the clever bed nook. Change the colours and accessories to suit your style because this design is a winner or should that be a pinner? Finally an Asian inspired show house room where the firm’s Hawaiian roots are subtly present.













Stepping down a steep slope in inner city Brisbane is a brick house of interconnected boxes. Walls slide wide open and privacy is assured with high brick walls. Private courtyards extend out from living areas but the secret jewel of this house is the view from the bedroom. Slide back the doors and your can almost pick the flowers from mature jacaranda and pointsiana trees. Brick walls meet a wall of green. Of course it helps to live in the subtropics. I’d love to be woken from my sleep by the drumming of rain from an early morning storm. The architect is the award winning James Russell. Real estate stalking in my part of the world. Link here while it lasts.













