
What do you do when you see a grand space with high end finishes, expensive art and covetable “it” furniture? Do you shake your head and say “Well that’s no good for me. I don’t live in a grand old house and can’t afford any of this.” Do you take note of finishes, how art is hung and stairs built to translate them into your more ordinary home? Does a Casa in Venice become just a colour palette? Or is there the urge to be adventurous, to be bold, to seize your design geist and just go with it, whatever it may be? I may never live in a space like the Casa in Campo Santa Maria Formosa in Venice by Massimo Adario Architetto but, oh my, it sets my imagination racing.










Polished concrete floors with exposed aggregate, rendered bathroom walls, raw brass, painted brick, breeze block, open plan living. These are a few of my favourite things. Oh I forgot to mention re-imagined retro houses, the swan-like transformation from tired blonde brick and boxy, dark rooms into stylish, light filled spaces perfect for beachside living. George Garrow House by Sydney-based Marika Järv Creative.










This may be my all time favourite warehouse conversion ever featured on this here blog. This beauty is a recently converted and extended ironmongers warehouse in London. THE KITCHEN!!! A total dream in tile, concrete, walnut, marble, copper, brass and brick. TO DIE FOR!!! I would stop there but I am also a new huge fan of terrazzo flooring so there’s that too. Available as a location home through Shoot Factory.



















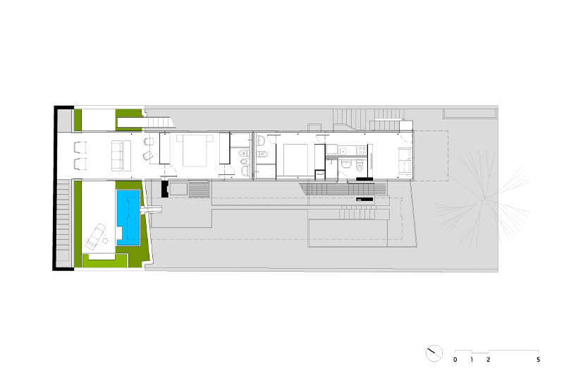
Welcome to São Paulo, a seething city of 20 million in Brazil. Welcome to your weekender, your bolt hole in the middle of it all. The owners of this striking home decided that being trapped in a traffic jam for hours on end with their fellow city dwellers all trying to make their summer exodus to the beach just wasn’t worth it. They, or rather spbr arquitetos, bought the getaway to the city.



























Photography by Nelson Kon