
Minimalism again? Oh yes! But instead of stark, cold white there is a richness, a glow. Simple clean lines but multi-layered with different surfaces and textures. Spartan but elegant. Who said minimalism was cold? What is devoid of surface pattern is enriched by the interplay of materials. Stepped House by Australian architects Russell & George.






We received an email about this “cottage” which I think is an odd term for such a HUGE home that is located in probably the most expensive “cottage country” in Canada. The Muskokas are where them rich folk hang out in the summer. And homes like this are not their primary residences! Insanity, I know. The interior of this home is pretty blah, but I was blown away by the views out of each and every window (which are apparently all fancy top-of-the-line windows says the info we were given on the home). Picturesque!









Andersen Sales Representative: Chris Oke
Dealer: Muskoka Window And Door Centre; Jeff Hodges, Randy Hodges, Glen Dalgleish
Architectural Technologist: Draftec Designs Inc.; Mark Jones
Builder: Freeburn King Building Contractors; Dan Freeburn and Greg King

I have had a crush on Toronto photographer Angus Fergusson (ok, his work really) since the dawn of time…or when I started reading shelter magazines religiously. Like white on rice, or stray cats to my house, Angus’ work is all over Canadian mags and has been for some time. The 15 photos below prove I’m not just running my mouth off. (P.S. Jo’s crushing too – see here).















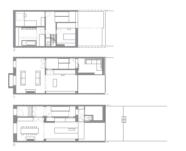
Continuing my fascination with minimalist homes around the world. A Belgian mansion style house that has seen better days, lost some of its character with one too many renovations. The old exterior is kept but at the back the minimalist magic begins. The renovation was about aligning and subtracting. Consolidating and eliminating. It’s black but it’s white. It has historical references but modern credentials. It’s about light and space and a new life. It’s House J & M by Bruno Vanbesien.

















She is a house in the Southern Bahia area of Brazil and the daughter of the home’s designer Jan Eleni. Casa Lola means Lola’s House. It also means perfection. Oh what a house! Rustic and white. Cool and casual. Relaxed and boho chic. This wonderful home has been popping up on a couple of blogs but, my oh my, I couldn’t resist. Even better than dreaming about it? It’s available to rent.













