
Oh how I’ve been hanging out for the new Inside Out. I’m such an addict! An email from Lee Tran Lam, Managing Editor, gave me little butterflies of excitement. I knew she would be sharing another fabulous home with us. I was wrong. There wasn’t a sneak peek attached. No there were two!
“The first home – styled by Andrea Millar and photographed by Prue Ruscoe – is a really quirky warehouse in Sydney. There’s a “Spaghetti Bar” sign in the kitchenette, a lap timer clock from a swimming school in the dining room and even a trapeze (!) that hangs between the second and third level. (Originally, there was a rope and pulley system between the floors to move goods. The owners put the swing up to take over the void – and use it for chin ups and fooling around!) My favourite room would be the teenage daughter’s bedroom, which has this ultra-colourful rug that looks like a rainbow of burst balloons have been swept into the room.” I love this home. I’d move in tomorrow! The second house? I’ll share that one in a few hours. Completely different and very cool!
Aussie readers can pick up their copy of the Jan/Feb Inside Out Thursday. Don’t fret if you aren’t in Australia though because you can read along on Zinio, Google Play and the Apple Newsstand.







It’s no secret that Jo is a fan of Australian architectural firm Techne (see here, and here, and here). Well, now I’m jumping on this bandwagon and raising a white flag. I surrender to their unbelievable talent and the ultra cool designs they have come up with. Like this warehouse. Dear gawd this is just so damn perfect. It is bright and fresh and clean. All of the black details (windows, beams, stairs) with the white walls and concrete and light wood floors is such a beautiful graphic combination. An absolute dream home.














In the inner city Sydney suburb of Lilyfield a garden grows. Behind an old brick facade in a building that once housed the “Oh Boy Candy Company” is a sweat treat, a green oasis. In the heart of a warehouse conversion by Virginia Kerridge is a space to breathe, to grow, to play, to see the sky, to connect. Solid and void, old brick and beam, sleek contemporary finishes, history and family home.










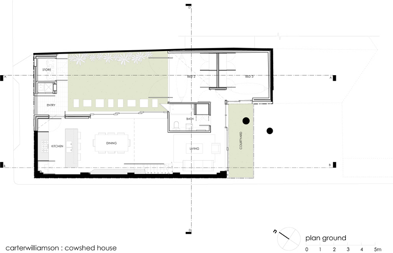
On a street corner in once gritty inner Sydney suburb sat the remains of an old cowshed, brick and timber standing against the ravages of time. From another era and another way of life the building should not have survived as the surrounding suburb was gentrified. The new owners turned to architects Carter Williamson to save it. Not as a time capsule though but as a vibrant and lively modern home perfect for family and friends, for entertaining or for retreating from the hustle and bustle of the big, brash city.























Heaven is dark and moody. No bright, white light. No pearly gates and fluffy clouds. No, it is an apartment in a Collingwood, Melbourne warehouse by Wolveridge Architects. Exposed brick, old timbers, leather, a slightly fussy wallpaper. Bliss. No, I mean heaven!







