
An old electric light station building is a perfect stage for this light infused loft. Luxe against rough, walls of books, tribal meets texture, industrial softened with fine fabrics, soaring ceilings and that light, that beautiful light. I have serious work place eny. The design studio of Thomas Hamel and Associates in Redfern, Sydney. Sigh.








Some random googling the other day led me to this incredible Brooklyn loft and I had to share it with you all. It is the home of Brin Reinhardt and Nathan Ursch of Breuckelen Berber – 960 sq ft of gorgeous loftiness located in a converted sandpaper factory. They have it all decked out with to-die-for classic mid-century pieces that create such a vivacious, eye-catching space. And OMG, their cats are named Charles and Ray (the Eameses). Gawd I love this! (Via Houzz)















If you are in the market for some cool furnishings as seen above but do not quite have the budget for the real deal, Rove Concepts is a manufacturer of high quality Mid century iconic reproductions (Eames Lounge Chair Replica, Saarinen Dining Table Replica, Barcelona Chair and tons more). Check them out!

Give me any type of loft, any day of the week and I am on cloud nine. Include a kitchen with exposed brick wall, concrete countertops, reclaimed wood cabinets and Jieldé lights and I am drooling all over my computer. This loft is gorgeous. Via Istanbul-based Vimana Design.














I am in love with this loft apartment. It is the home of photographer Margrethe Myhrer (Jo featured her work here), her boyfriend Henrik and their baby daughter Alma, located in Majorstua, the west side of Oslo, Norway. Those beams! Those leather dining chairs! The concrete in the kitchen and bathroom! Margrethe’s stunning photographs on the walls! AAAHHHHH!!!!! This is a little slice of heaven. And with that, happy Friday dear readers!
P.S. For folks in and around Ottawa, don’t forget about the Ottawa Antique Show tomorrow and Sunday. I’ll be there so stop by the Daff Design booth and say hi!




















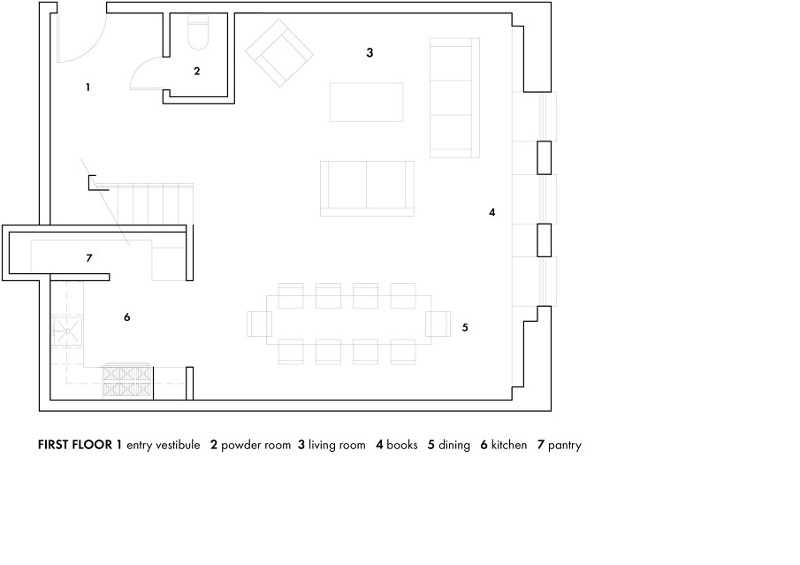
Imagine living in a loft awash with light and space. Line the walls with books and art, fall back into your comfy couch and you’re home. What’s not to love about this Brooklyn loft by Ensemble Architecture? I’m still oggling the impressive wall of books. Yes please!

















